- Woonoppervlakte
- Circa 95 m²
- Perceeloppervlakte
- Circa 136 m²
- Bouwjaar
- Gebouwd in 1992
- Aantal kamers
- 2 kamers (1 slaapkamers)
Stel je voor: een vrijdagavond in april, de zon zakt achter de daken van Kattenbroek en jij zit nog comfortabel te genieten in de serre van Knuppelweg 10. Deze goed onderhouden tussenwoning aan de Knuppelweg 10 combineert een scherp energielabel A met een indrukwekkende lijst recente verbeteringen — en dat voor een vraagprijs die je als starter of stel direct aanspreekt.
EEN WONING DIE ER KLAAR VOOR IS
Gebouwd in 1992 en door de huidige eigenaren de afgelopen vijf jaar stap voor stap vernieuwd. De kunststof kozijnen met HR++-glas (begane grond vernieuwd in 2023, inclusief voordeur en keukenraam), de dakkapel uit 2021 en het dakraam uit 2024 — allemaal met rolluiken — zorgen voor een woning die dicht, stil en comfortabel aanvoelt. Op beide woonlagen ligt een laminaatvloer.
SLIM EN DUURZAAM LEVEN
Negen zonnepanelen (Longi 370 Wp, geplaatst in 2021) wekten het afgelopen jaar ruim 3.500 kWh op. Gecombineerd met de Remeha HR-ketel, volledige isolatie van dak, muur en vloer, en een gasverbruik van slechts 98 m³ per jaar voor twee personen, zijn de vaste lasten bijzonder laag. Energielabel A is hier geen papieren belofte, maar dagelijkse werkelijkheid.
RUIMTE EN INDELING
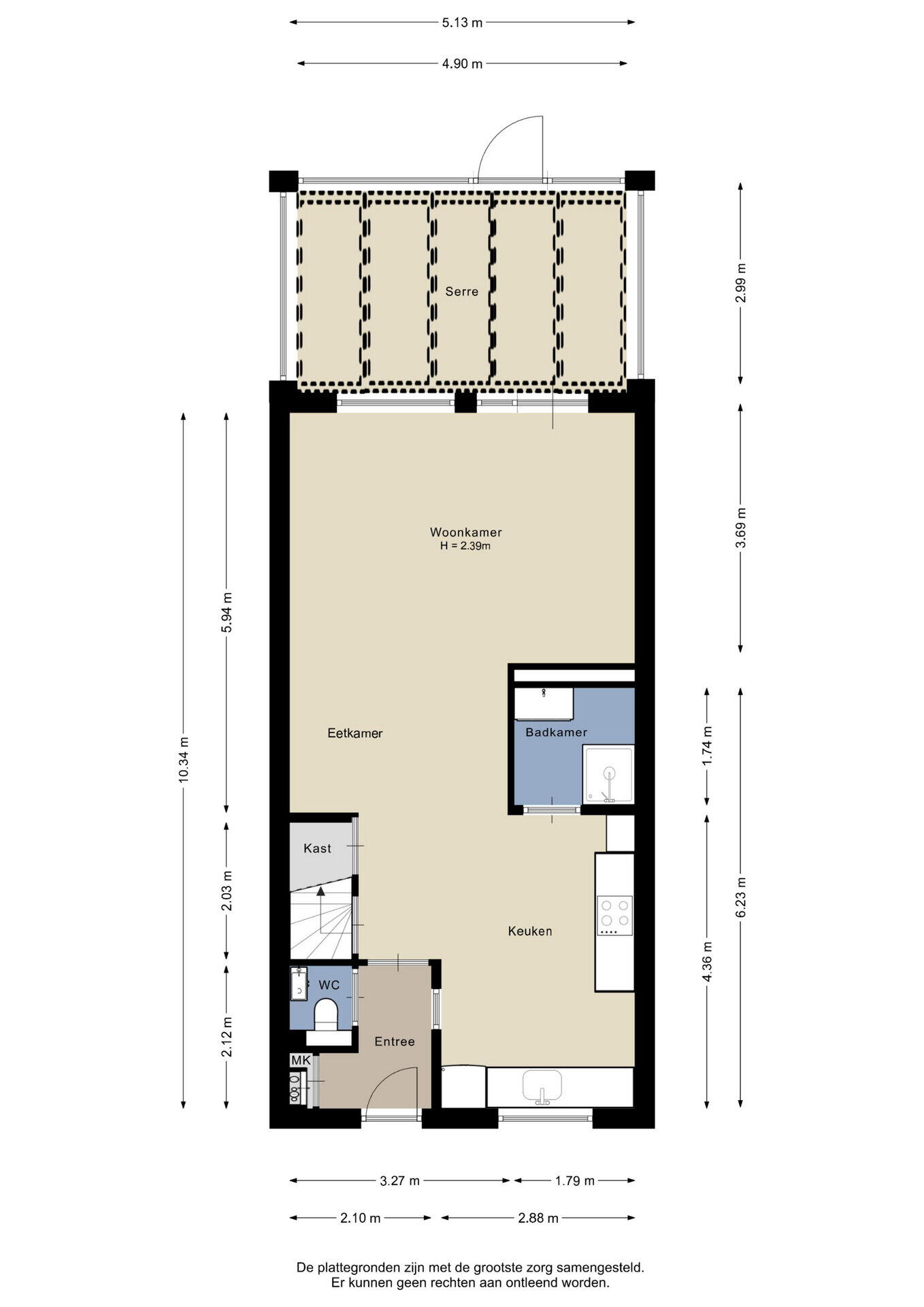
Met 95 m² woonoppervlakte op een perceel van 136 m² biedt de woning een slimme indeling. De begane grond heeft een open keuken aan de voorzijde van de woning en de woonkamer aan de achterzijde met aangrenzend de serre. De badkamer is ook op de begane grond en is voorzien van douche en wastafelmeubel. Het toilet is separaat bereikbaar vanuit de hal. Op de eerste verdieping vind je de ruime slaapkamer met dakkapel aan de achterzijde en dakraam aan de voorzijde, een was-/bergruimte en de stookruimte. De slaapkamer is ook makkelijk op te splitsen, zodat je twee kamers creëert. Via het dakraam — voorzien van rolluik — valt licht naar binnen. De achtertuin op het noordoosten met achterom, een vrijstaande stenen berging en verzorgde beplanting ronden het geheel af.
KATTENBROEK: EEN WIJK DIE JE VERRAST
Wie Kattenbroek nog niet kent, staat voor een verrassing. De woning ligt in deze rustige, groene en kindvriendelijke wijk met alle voorzieningen dichtbij. Op loopafstand vind je winkelcentrum Emiclaer, scholen, kinderopvang en sportverenigingen. De bereikbaarheid is uitstekend: uitvalswegen, NS-station Schothorst en het centrum van Amersfoort zijn snel te bereiken. In de buurt zijn volop speelplekken, parken en waterpartijen. Hier woon je veilig en prettig, met alles binnen handbereik.
BIJZONDERHEDEN
• Energielabel A, volledig geïsoleerd
• 9 zonnepanelen, gasverbruik slechts 98 m³
• Slaapkamer eenvoudig te splitsen in twee kamers
• Kozijnen, dakkapel en dakraam recent vernieuwd
• Keuken, badkamer en toilet gemoderniseerd
• Verzorgde tuin met achterom en berging
KOM JE KIJKEN?
We snappen dat een huis kopen meer is dan alleen een dak boven je hoofd. Het gaat om een thuis creëren, een plek waar je je écht op je gemak voelt. Daarom nemen we graag de tijd om samen met jou deze woning te bekijken tijdens een persoonlijke bezichtiging. Want wie weet? Misschien vind je hier wel het perfecte plekje om nieuwe herinneringen te maken. Bij Vlaming voel je je thuis, nog vóór je verhuist!
Neem gerust contact op met Vlaming Makelaardij voor een afspraak met Sjoerd Vlaming, Willeke van Munster of Anja van Ingen - we helpen je met plezier op weg naar je nieuwe thuis!
Overdracht
- Vraagprijs
- € 425.000 k.k.
- Status
- Beschikbaar
- Aanvaarding
- In overleg
Bouw
- Object type
- Eengezinswoning, tussenwoning
- Soort bouw
- Bestaande bouw
- Bouwjaar
- 1992
- Soort dak
- Zadeldak bedekt met pannen
Oppervlakte en inhoud
- Woonoppervlakte
- 95 m²
- Perceeloppervlakte
- 136 m²
- Inhoud
- 327 m³
- Externe bergruimte
- 8 m²
Indeling
- Aantal kamers
- 2 kamers (1 slaapkamers)
- Aantal badkamers
- 1 badkamer
- Badkamervoorzieningen
- Douche, wastafel, wastafelmeubel
- Aantal woonlagen
- 2 woonlagen
- Voorzieningen
- Mechanische ventilatie, dakraam, glasvezel kabel, zonnepanelen
Energie
- Energielabel
- A
- Energielabel registratie
- 14-01-2026
- Isolatie
- Dakisolatie, muurisolatie, vloerisolatie, volledig geïsoleerd, hr glas
- Verwarming
- Cv-ketel
- Warm water
- Cv-ketel
- Cv ketel
- Remeha hr combiketel gas gestookt uit 2011 (eigendom)
Buitenruimte
- Ligging
- Aan rustige weg, in woonwijk
- Tuin
- Achtertuin, voortuin
- Afmetingen achtertuin
- 28 m² (6.6 meter diep en 5.5 meter breed)
- ligging tuin
- Gelegen op het noordoosten en bereikbaar via achterom
Bergruimte
- Schuur / berging
- Vrijstaand steen
Garage
- Soort garage
- Geen garage
Parkeergelegenheid
- Soort parkeergelegenheid
- Openbaar parkeren
Indicatie hypotheeklasten
Eigen inleg:
Spaargeld / overwaarde
Rente:
Laagste 10-jaars rente
Laagste 10-jaars rente
2,78% - Centraal Beheer - NHG
3,04% - Centraal Beheer - 80%
Laagste 20-jaars rente
3,29% - Centraal Beheer - NHG
3,52% - Centraal Beheer - 80%
Laagste 30-jaars rente
3,41% - Centraal Beheer - NHG
3,7% - Argenta - 80%
Hypotheek:
Bruto maandlasten: € 0 p/m
Netto maandlasten: € 0 p/m
Hoe berekenen we dit?
Het rentepercentage is gebaseerd op de laagste 10 jaars vaste rente voor één hypotheekdeel. De vermelde rente (3.04% zonder NHG) is gecontroleerd op 07-04-2026. Deze berekening is gebaseerd op een annuïteitenhypotheek die volledig wordt afgelost, waarbij de maandlasten gedurende de gehele looptijd gelijk blijven. De werkelijke rente en netto maandlasten kunnen variëren, afhankelijk van uw persoonlijke situatie en de hypotheekverstrekker. Raadpleeg een financieel adviseur voor een nauwkeurige berekening en advies. Aan deze berekening kunnen geen rechten worden ontleend; het dient enkel als indicatie.
Documentatie
Kadastrale kaart
Leefomgeving
Meetrapport
Plattegronden PDF
WOZ waarderapport
BAG uittreksel
Brochure
Bezichtiging
Bod uitbrengen
Waardebepaling
Alles downloaden
Zonnegrenzen bekijken
Inwoners in Amersfoort
Cijfers voor postcodegebied 3823
- Totaal aantal inwoners
- 11255 inwoners
- Mannen
- 49%
- Vrouwen
- 51%
Inwoners in Amersfoort
Cijfers voor postcodegebied 3823
- tot 15 jaar
- 17%
- 15 tot 25 jaar
- 14%
- 25 tot 35 jaar
- 22%
- 45 tot 65 jaar
- 35%
- 65 en ouder
- 13%
Huishoudens in Amersfoort
Cijfers voor postcodegebied 3823
- Eenpersoons zonder kinderen
- 31%
- Meerpersoons zonder kinderen
- 26%
- Huishoudens zonder kinderen
- 57%
Huishoudens in Amersfoort
Cijfers voor postcodegebied 3823
- Huishoudens met één kind
- 9%
- Huishoudens met meerdere kinderen
- 34%
- Huishoudens met kinderen
- 43%
Woningen in Amersfoort
Cijfers voor postcodegebied 3823
- Woningen voor 1945
- 1%
- Woningen tussen 1945 en 1965
- 1%
- Woningen tussen 1965 en 1975
- 1%
- Woningen tussen 1975 en 1985
- 1%
- Woningen tussen 1985 en 1995
- 90%
Woningen in Amersfoort
Cijfers voor postcodegebied 3823
- Woningen tussen 1995 en 2005
- 9%
- Woningen tussen 2005 en 2015
- 1%
- Woningen na 2015
- 1%
- Huurwoningen
- 30%
- Koopwoningen
- 70%
Overige in Amersfoort
Cijfers voor postcodegebied 3823
- Gemiddelde WOZ waarde
- € 296.000,-
- Personen onder de 65 met uitkering
- 7%
Overige in Amersfoort
Cijfers voor postcodegebied 3823
- Adressen per km²
- 2190
- Stedelijkheid (schaal 1 op 5)
- 80%
Vlaming Makelaardij
Indien u vragen heeft of u wilt een bezichtiging inplannen, dan kunt u gebruik maken van het formulier hiernaast. Er zal daarna op korte termijn contact met u worden opgenomen.
Contact opnemen
Over Vlaming Makelaardij
Bij ons staat één ding centraal: u zorgeloos begeleiden bij het aankopen, verkopen of taxeren van uw woning. Veel mensen kozen al voor onze aanpak en met trots kunnen we zeggen dat zij uiterst tevreden zijn over het resultaat.
In 2024 beoordeelden onze klanten onze dienstverlening met een 9,6 voor verkoopbegeleiding en een 9,5 voor aankoopbegeleiding. Dat zijn geen loze cijfers — het is het bewijs dat wij nét dat stapje extra zetten.
Wij zijn geen standaard makelaarskantoor. Persoonlijk contact, oprechte betrokkenheid en een resultaatgerichte werkwijze zijn voor ons vanzelfsprekend. We werken met energie en precisie. Sjoerd, Willeke en Timo brengen ieder ruim twintig jaar ervaring mee in het vak — expertise waar u direct de vruchten van plukt.
Vanaf onze locatie aan de Utrechtseweg 40 werken we volledig op maat. De woningmarkt verandert razendsnel en vraagt om een frisse manier van denken en communiceren. Daarom houden wij de lijnen kort, zorgen we voor laagdrempelig contact en gebruiken we moderne marketingmiddelen om uw woning onder de aandacht te brengen.
We nemen u zoveel mogelijk werk uit handen, zodat u met een ontspannen gevoel aan de volgende stap in uw woonreis kunt beginnen.
Als Amersfoorts NVM-kantoor blijven wij continu investeren in actuele kennis en opleiding. We beschikken over de grootste woningdatabase van Nederland, waardoor wij een betrouwbare en onderbouwde waardebepaling kunnen geven van uw woning of toekomstige woning.
Met onze ervaring en toewijding zetten we ons elke dag in voor het beste resultaat voor u. Maak gebruik van onze kennis en nodig ons vrijblijvend uit voor een persoonlijk gesprek.
Nieuwste reviews
-
Jetze Visser
Na twee keer een huis te hebben aangekocht heeft Vlaming ons nu ook succesvol geholpen met de verkoop van ons huis. Een heel ander proces da...
-
Kroonenburg 74
Na twee keer een huis te hebben aangekocht heeft Vlaming ons nu ook succesvol geholpen met de verkoop van ons huis. Een heel ander proces da...
-
Patrick Custers
Kundige makelaars met heel veel ervaring, super goed bereikbaar en actiegericht. Goed advies en ondersteuning als aankoopmakelaar, heel blij...